【摘要】上海某筒倉,為某碼頭改造項目其中一幢建筑,業主擬對該筒倉進行改造開發建設,同時為規劃保留建筑的保護性改造提供房屋質量的基礎資料。本報告對結構的改變、損傷、傾斜、不均勻沉降、混凝土強度、構件尺寸和配筋等進行復核調查,對結構建立計算分析模型,對現有結構承載力進行驗算,給出檢測結論。
1.檢測目的、范圍
為配合某碼頭改造項目的開發建設,同時為規劃保留建筑的保護性改造提供房屋質量的基礎資料,受業主委托對上述建(構)筑物進行安全檢測。
被檢測建(構)筑物總平面見圖1-1。
本報告對象為八萬噸筒倉。

2.主要檢測內容
1) 調查、摸清房屋的建筑、結構情況和使用情況,包括實際組成、結構形式、結構布置、構件類型、連接構造等;
2) 檢測房屋建筑、結構的缺陷和損傷,并分析各類缺陷和損傷對結構性能的影響和產生原因;
3) 對該建筑的主要結構構件進行材料強度檢測;
4) 建筑變形測量;
5) 正常使用荷載下結構承載力分析;
6) 按照現行國家和地方標準,根據現場檢測結果、委托方提供的圖紙資料及結構驗算結果,確定房屋結構安全性,提出使用、維修、加固的措施和建議。
4.房屋基本情況
房屋名稱:八萬噸筒倉
結構類型:鋼筋混凝土筒倉結構
房屋設計日期:1991年


1)筒倉
筒倉建筑平面近似矩形,由3排10列、共30個內徑為12m的標準單倉及18個內徑為5.14m的星倉組成,東西向總長124.2m,南北向總寬37.2m。倉壁結構底部標高為10.8m,倉頂標高為39.3m;倉上建筑物為單層房屋,屋面標高為48m。
標準單倉由支撐結構、倉壁結構、漏斗結構和倉頂組成。支撐結構為鋼筋混凝土支柱,支柱截面尺寸為850mm×850mm、850mm×1700mm,混凝土柱縱筋分別為3232、5832,8@200復合箍筋。倉壁內徑為12m,壁厚為210mm,倉壁高28.5m;倉壁按照高度分段配筋,內倉壁自下至上分為四段,標高10.160m~20.300m水平環筋、垂直鋼筋分別為214@100、214@200,標高20.300m ~25.050m水平環筋、垂直鋼筋分別為214@125、214@200,標高25.050m ~29.800m水平環筋、垂直鋼筋分別為212@125、212@200,標高29.800m ~39.300m水平環筋、垂直鋼筋分別為212@150、212@200;外倉壁自下至上分為五段,標高10.160m~20.300m水平環筋、垂直鋼筋分別為216@100、214@150,標高20.300m ~25.050m水平環筋、垂直鋼筋分別為216@120、214@150,標高25.050m ~29.800m水平環筋、垂直鋼筋分別為214@100、212@150,標高29.800m ~34.550m水平環筋、垂直鋼筋分別為214@120、212@150,標高34.550m ~39.300m水平環筋、垂直鋼筋分別為212@120、212@150;倉壁下環梁截面尺寸主要為850mm×1260mm,梁底、梁頂鋼筋均為1325,箍筋為8@200。漏斗結構為圓錐鋼漏斗,筒倉鋼漏斗高度為5.0m,鋼板厚度為12mm;星倉鋼漏斗高度為1.9m,鋼板厚度為10mm。倉頂為井子梁、板結構,井子梁為桁架結構,東西向梁及南北向梁截面尺寸主要為350mm×1250mm的勁性梁;預制板樓蓋。倉上建筑鋼筋混凝土結構,混凝土梁的截面尺寸主要為300mm×1100mm、300mm×1300mm,預制板屋蓋。
筒倉基礎為鋼筋混凝土樁筏基礎,筏板厚度為1750mm。工程樁采用450mm×450mm預制鋼筋混凝土方樁,為二節制作,上段15m,下段16.5m,樁編號為JZHb-45-1516.5C,混凝土標號為400級。
混凝土設計強度等級如下:
基礎、筒倉支柱及倉壁:300號。
2)工作樓
工作樓為一幢地下一層、地上八層的鋼筋混凝土結構房屋,建筑平面呈矩形,東西向為單跨,跨度為12.5m;南北向共6個開間,北起第三個開間尺寸為7.0m,其余開間尺寸均為5.5m,總長35m。房屋地下一層、一層、三層層高為4.5m,二層層高為6.0m,四~八層層高均為8.1m,總高55.5m。
工作樓結構以框架為主,南端樓梯間區域及部分外墻為剪力墻。混凝土柱的截面尺寸主要為600mm×1200mm,混凝土梁截面尺寸主要為350mm×1250mm、350mm×850mm。混凝土墻板厚度主要為220mm、240mm、350mm。現澆混凝土樓(屋)蓋,樓板厚度主要為120mm。
基礎為鋼筋混凝土樁筏基礎,地下室底板厚度為1100mm,工程樁采用450mm×450mm預制鋼筋混凝土方樁,為二節制作,上段13m,下段14.8m,樁編號為JZHb-45-1314.8C,混凝土標號為400級。
混凝土設計強度等級如下:
根據委托方提供的圖紙掃描件(圖號:結施7,結施10),砼標號為300號;
根據委托方提供的圖紙掃描件(圖號:結施33),四層以下為C35,四層以上為C30。
5.現場檢測
1、建筑、結構布置調查
在現場對房屋的建筑和結構布置進行了調查,采用激光測距儀(型號:PD-24,儀器編號:031-1) 抽查測量了部分軸線尺寸。
檢測結果表明,房屋結構布置、軸線尺寸基本與委托方提供的圖紙資料相符。
2、混凝土構件截面尺寸檢測
現場用鋼卷尺(型號:30m,儀器編號:016)抽樣檢測了部分結構構件的截面尺寸。
檢測結果表明,房屋結構構件截面尺寸基本與委托方提供的圖紙資料相符。
3、構件配筋抽樣檢測
為明確混凝土構件中鋼筋配置情況,現場采用鋼筋探測儀(型號:PROFOMETER-5s,儀器編號:002)對梁柱縱筋數量進行了探測,并局部鑿除混凝土保護層用游標卡尺(儀器編號:030)測量鋼筋直徑。
經復核,混凝土構件配筋基本與委托方提供的圖紙資料相符。
4、混凝土強度測試
為確定被檢測房屋混凝土的抗壓強度,采用超聲回彈法并進行鉆芯修正,按照《結構混凝土抗壓強度檢測技術規程—回彈法、超聲回彈綜合法、鉆芯法》DG/TJ08-2020-2007規程進行混凝土強度現場抽樣檢測。
考慮到鉆芯會對房屋結構產生一定的損壞,因此根據房屋建造年代,把同一時期建造房屋作為一個批次進行修正量計算。
具體檢測結果見表 5-1~表5-2。



5、鋼筋強度檢測
根據《建筑結構檢測技術標準》(GB/T 50344-2004),采用硬度法對混凝土構件中鋼筋強度進行現場抽樣檢測。采用HL-300里氏硬度計檢測鋼筋表面里氏硬度,根據《金屬里氏硬度試驗方法》(GB/T 17394-1998)、《黑色金屬硬度及強度換算值》(GB/T 1172-1999)、《鋼筋混凝土用鋼 第1部分:熱軋光圓鋼筋》(GB1499.1-2008)、《鋼筋混凝土用鋼 第2部分:熱軋帶肋鋼筋》(GB1499.2-2007)評定鋼筋的抗拉強度,具體檢測結果見表5-3,測量結果含測量誤差。

經檢測,混凝土柱中鋼筋抗拉強度相當于現行規范HRB335的強度要求,達到二級鋼設計強度等級要求。
6、相對沉降測量
為了解該房屋的相對沉降情況,根據國家行業標準《建筑變形測量規范》JGJ8-2007,采用水準儀(型號:DZS2,儀器編號:005)測量房屋一層窗臺的相對高差,測量結果見表5-4,測點布置圖見圖5-1,測量結果含施工和測量誤差。

該廠房目前基礎傾斜率最大值為3.274‰(S8和S9兩點之間),小于《地基基礎設計規范》(DGJ08-11-2010)關于排架結構基礎傾斜率的限值4‰。
7、房屋整體傾斜檢測
根據國家行業標準《建筑變形測量規范》JGJ8-2007,用J2-JDE經緯儀(編號003)采用投點法測量房屋傾斜率,測點布置見圖5-2,測量結果見表5-5(結果含測量誤差)。

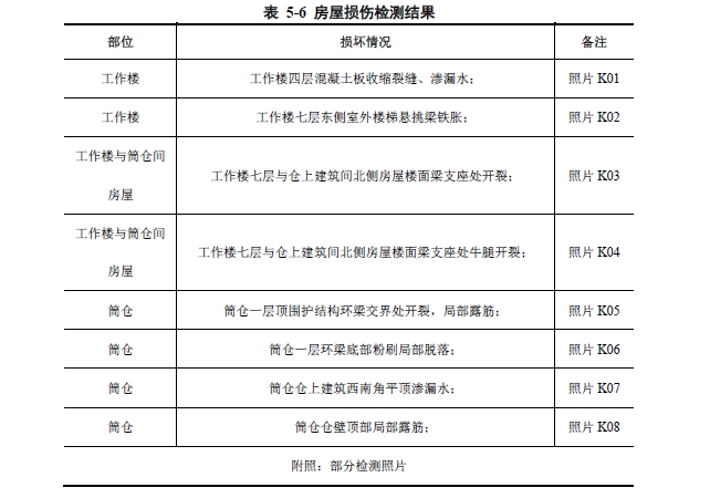
8、房屋完損檢測
為明確房屋完損狀況,現場對房屋建筑結構進行了完損檢測。
經檢測,工作樓室外樓梯混凝土構件存在鐵脹、鋼筋銹蝕現象,局部混凝土樓板存在收縮裂縫。
筒倉一層圍護結構存在多處滲漏水現象,圍護外墻局部開裂,內粉刷局部脫落;倉上建筑屋面天溝處及外墻多處滲漏水,內粉刷受潮、脫落;倉壁頂部局部露筋,鋼筋銹蝕。
工作樓與筒倉間的房屋混凝土梁端與牛腿處存在開裂現象,平頂存在預制板縫、滲漏水現象,圍護墻體多處開裂。
典型損壞情況如下表:


6.結構驗算
6.1工作樓
6.1.1主要驗算參數
根據《建筑結構荷載規范》(GB50009-2012)的規定,被檢測房屋主要驗算參數如下:
風荷載:基本風壓0.55kN/m2,C類粗糙度;
二層~八層樓蓋恒載:3.7 kN/m2;
屋面恒載:6.0kN/m2;
二層~八層樓面活載:5.0kN/m2(經試算,當樓面活載大于該值時,上部結構承載力不能滿足現行規范要求);
屋面活載:2.0 kN/m2(上人屋面)。
其余參數均根據現行標準、現場檢測結果取值。
不考慮地震作用。
6.1.2結構驗算結果
驗算按照《建筑結構荷載規范》(GB50009-2012)、《混凝土結構設計規范》(GB50010-2010)等現行地方和國家標準,采用中國建筑科學研究院結構研究所PKPM系列的SAT8等軟件計算。
柱承載力驗算
混凝土柱承載力基本滿足要求。
梁承載力驗算
混凝土梁承載力滿足要求。
6.2筒倉
6.2.1主要驗算參數
根據《建筑結構荷載規范》(GB50009-2012)、《鋼筋混凝土筒倉設計規范》(GB50077-2003)的規定,被檢測筒倉主要驗算參數如下:
筒倉貯料:大米(常見糧食中密度最大);
貯料重力密度:8.5kN/m³;
內摩擦角:30°;
對混凝土板摩擦系數:0.42;
豎向壓力修正系數:1.0;
倉壁保護層厚度按設計取值:20mm;
倉上建筑樓面恒載:5.5kN/m2,樓面活載:4.0kN/㎡;
倉上建筑屋面恒載:6.0kN/m2,屋面活載:0.5kN/m2;
風荷載:基本風壓0.55kN/m2,C類粗糙度;
其余參數均根據現行標準、現場檢測結果取值。
不考慮地震作用。
6.2.2結構驗算結果
倉壁
按照《建筑結構荷載規范》(GB50009-2012)、《鋼筋混凝土筒倉設計規范》(GB50077-2003)的規定等現行地方和國家標準,采用手算進行驗算復核,驗算結果見表 5-1~表 5-3。



7.結論及建議
c. 經復核,房屋結構布置、軸線尺寸、構件截面尺寸基本與委托方提供的測繪圖紙資料基本相符。
d. 經混凝土強度檢測,筒倉及倉上建筑混凝土強度推定值分別介于28.2MPa~31.1MPa、27.4MPa~29.2MPa,工作樓結構構件混凝土強度推定值介于26.5MPa~31.1MPa。
e. 經鋼筋強度檢測,混凝土構件中鋼筋抗拉強度相當于現行規范HRB335的強度要求,達到二級鋼設計強度等級要求。
f. 經完損檢測,房屋主要存在混凝土構件鐵脹、鋼筋銹蝕、牛腿開裂、外墻和屋面滲漏水等損壞現象。
g. 根據測量結果,目前受檢房屋整體傾斜方向不具有一致性,測點傾斜率介于0.63‰~1.67‰,傾斜率小于《地基基礎設計規范》(DGJ08-11-2010)規定的限值4‰。
h. 經驗算,在正常使用荷載下,工作樓樓面最大活載取值為5kN/m2,此時,房屋上部結構混凝土構件承載力基本滿足要求;筒倉區域結構承載力基本滿足要求。
i. 綜上,在正常使用荷載下,目前房屋整體結構安全,但房屋存在混凝土構件鐵脹、鋼筋銹蝕、牛腿開裂等損壞現象,應進行對癥加固、修繕。